For anyone building their first home it is an experience of highs and lows, as well as relief and frustration.

From start to finish it can be a bit of a roller coaster ride, as each stage comes and goes. It begins with finding the right house, or plan, and the right block of land to build it on.

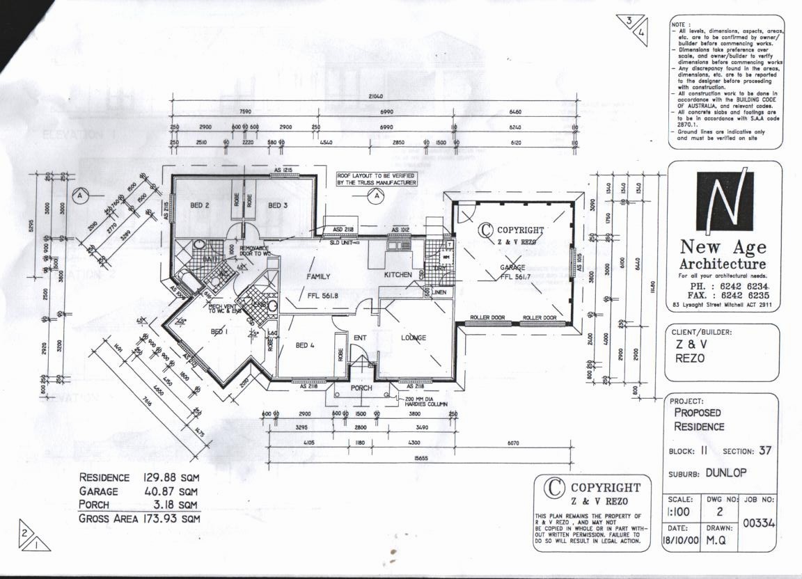
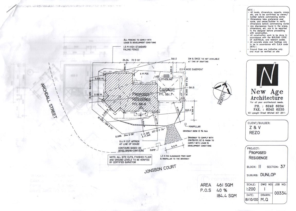
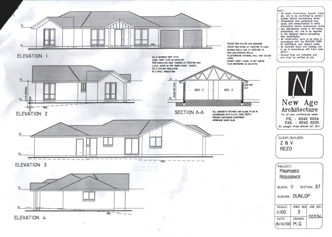
In our case it was a situation whereas the house was designed specifically for a particular corner block in the suburb of 'Dunlop', in Canberra, Australia.

At the time we were still without a full deposit, but had the minimum AU$1,000 required to secure the block, and with six months to get the balance we set the wheels in motion on the biggest purchase we are ever likely to make in our lives.

ourhouse1.jpg (188397 bytes)

ourhouse2.jpg (189851 bytes)

ourhouse3.jpg (170239 bytes)

With Christmas 2000 approaching we were making huge advances in having our minimum deposit ahead of schedule and decided to apply for the loan. The bank had no problem and all approvals were finalised in pretty quick time.

February 2001 saw the final approval of the plans take place and activity then began.

house2feb13.jpg (52507 bytes)

house3feb13.jpg (61359 bytes)

house4feb13.jpg (61741 bytes)

house6feb13.jpg (57816 bytes)

house5feb13.jpg (69716 bytes)

house7feb13.jpg (70172 bytes)

house8feb16.jpg (61651 bytes)

house9feb16.jpg (67792 bytes)

At first we had the surprise of seeing the chalk outline for the digging of the foundation trenches. When we initially saw these on the bare block we immediately thought the house looked small, but once the brickwork had commenced it was obvious we were on the small-large-small merry go round.

One thing we hadn't counted on was the slope of the land and the fact that, although the front of the house was going to be at ground level the back would not. It became apparent the indecision on whether to lay down a concrete pad, or build a timber deck entertainment area, at the back would be settled by the 1 metre drop from the doors at the rear of the house. A timber deck would be the only way to go, money-wise.

house010feb23.jpg (69307 bytes)

house011feb23.jpg (69698 bytes)

house012feb23.jpg (66833 bytes)

house013feb23.jpg (68336 bytes)

house014feb23.jpg (54262 bytes)

house015feb23.jpg (76672 bytes)

With the end of February upon us a slab has been laid for our new home. It seems to have taken an eternity, but the slab has finally been poured.

house016feb27.jpg (37737 bytes)

house018feb27.jpg (32187 bytes)

house019feb27.jpg (38639 bytes)

house020feb27.jpg (53358 bytes)

With the advent of March things began to shift into a higher gear, with the frames being commenced and completed in around a week. This included installation of front and back doors, as well as, windows. By March 7 only the garage remained the only major construction below the roofline.

house024mar2.jpg (54230 bytes)

house022mar2.jpg (60203 bytes)

house025mar2.jpg (51664 bytes)

house026mar2.jpg (50778 bytes)

house028mar2.jpg (50090 bytes)

house029mar2.jpg (54836 bytes)

house031mar2.jpg (38021 bytes)

house033mar7.jpg (55711 bytes)

house034mar7.jpg (63065 bytes)

house035mar7.jpg (48969 bytes)

house036mar7.jpg (53397 bytes)

house037mar7.jpg (62677 bytes)

house043mar7.jpg (52519 bytes)

house038mar7.jpg (37548 bytes)

house039mar7.jpg (38392 bytes)

house042mar7.jpg (53504 bytes)

That was soon to change and the place really took on the appearance of becoming our home.

The series of photos below was taken between March 12 and March 20, showing just how quickly it is now coming together.

house044mar12.jpg (63343 bytes)

house045mar12.jpg (57362 bytes)

house046mar12.jpg (59809 bytes)

house047mar17.jpg (34227 bytes)

house048mar17.jpg (46798 bytes)

house049mar17.jpg (39969 bytes)

house051mar17.jpg (55308 bytes)

house050mar17.jpg (55447 bytes)

house052mar17.jpg (55211 bytes)

house053mar20.jpg (42507 bytes)

house054mar20.jpg (55622 bytes)

house055mar20.jpg (32742 bytes)

house059mar20.jpg (35357 bytes)

house058mar20.jpg (54415 bytes)

By March 31 the gutters and facias had been completed and the roof tiling commenced. Things seem to be dragging o, but it is getting there. We also noticed that the sliding door cavities had been installed.

Another change is the built-in wardrobe in the master bedroom, that seemed a bit smaller than expected. The framework for that has now been removed to make way for a larger one.

house063mar31.jpg (56524 bytes)

house064mar31.jpg (55560 bytes)

house065mar31.jpg (34196 bytes)

This brings us to April 16 and our new home is advancing in leaps and bounds. Electricals are done, interior walls are finished ceilings are up. The kitchen is due to be commenced tomorrow, with the deck to be finished and other areas completed prior to painting.

house066april13.jpg (42825 bytes)

house067april13.jpg (60297 bytes)

house068april13.jpg (32864 bytes)

house069april14.jpg (18645 bytes)

house070april14.jpg (24806 bytes)

house071april14.jpg (32606 bytes)

house072april14.jpg (29020 bytes)

house073april14.jpg (29898 bytes)

house074april14.jpg (52851 bytes)

house075april14.jpg (20221 bytes)

house077april14.jpg (22733 bytes)

house076april14.jpg (25237 bytes)